TỰ ĐỘNG ĐIỀU KHIỂN ÁP SUẤT TĨNH NGOÀI (E.S.P)
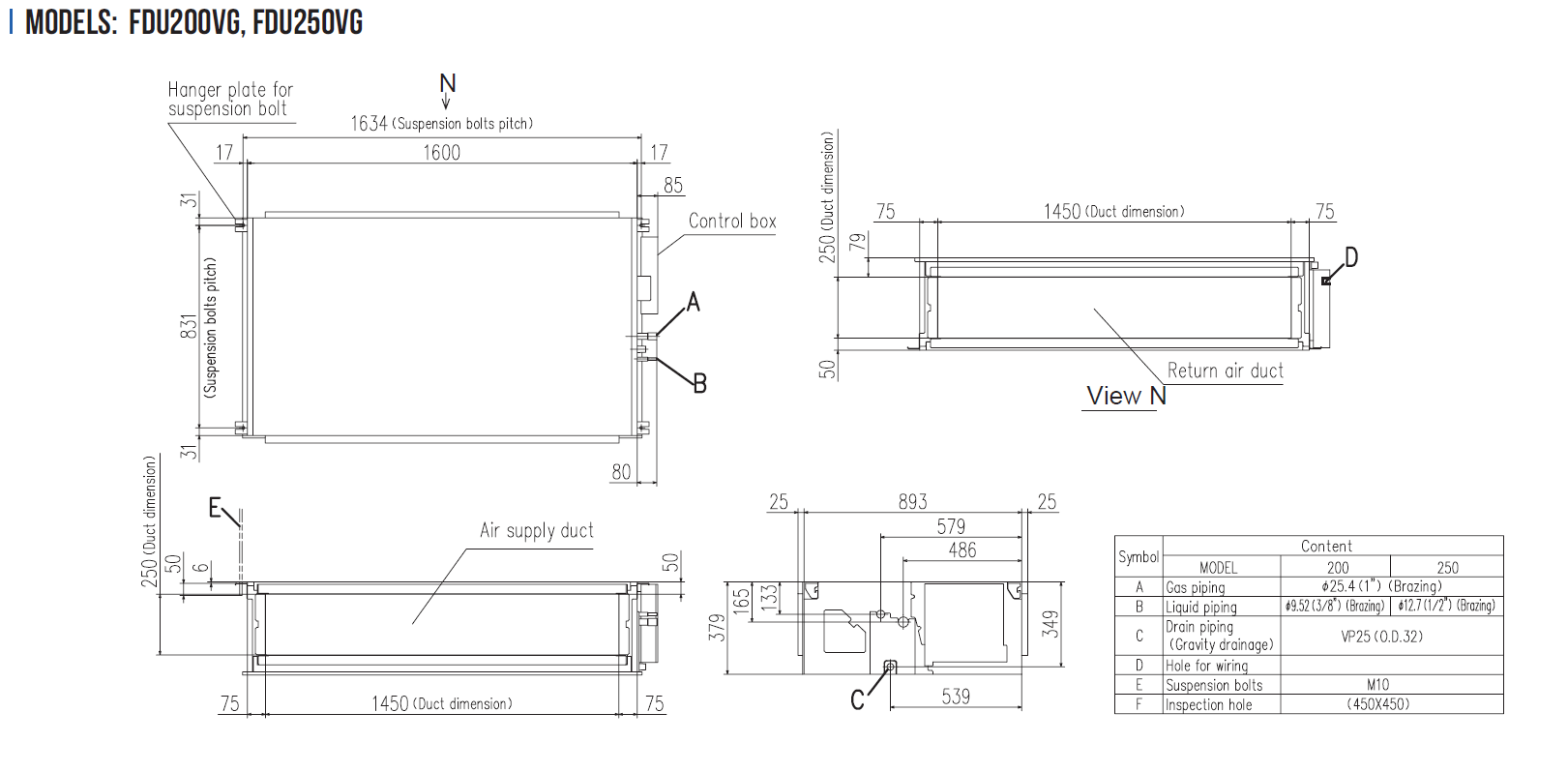
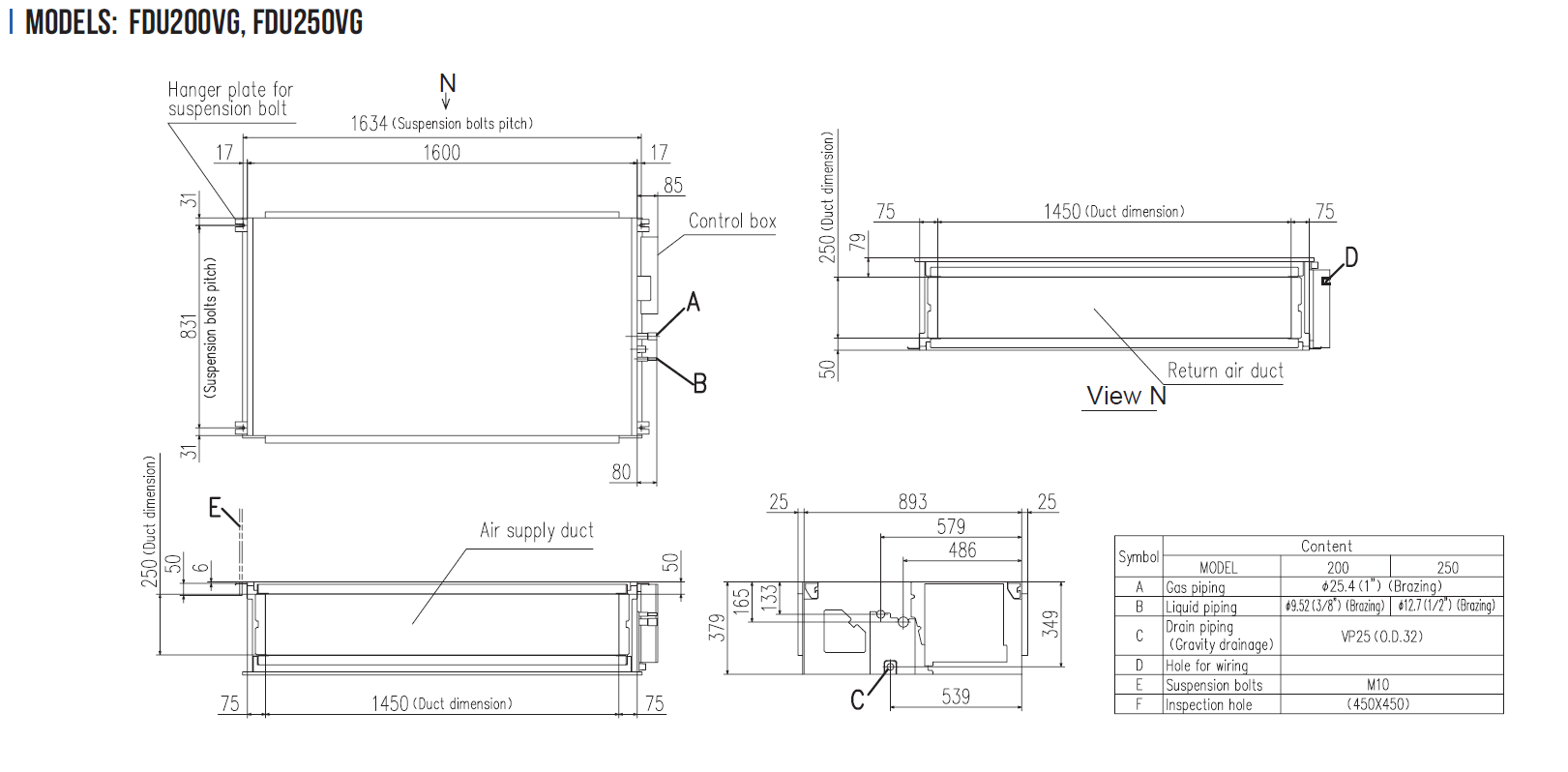
KÍCH THƯỚC LẮP ĐẶT FDU200VG - FDU250VG
Cải tiến không gian bảo trì
Cánh quạt và motor quạt có thể tháo ra từ mặt phải của dàn lạnh. Việc bảo trì có thể thực hiện được từ bên mặt phải hoặc phía dưới máy
BƠM NƯỚC XẢ TIỆN LỢI
Bơm nước xả được lắp sẵn với độ nâng đường ống là ...
TỰ ĐỘNG ĐIỀU KHIỂN ÁP SUẤT TĨNH NGOÀI (E.S.P)

KÍCH THƯỚC LẮP ĐẶT FDU200VG - FDU250VG

Cải tiến không gian bảo trì
Cánh quạt và motor quạt có thể tháo ra từ mặt phải của dàn lạnh. Việc bảo trì có thể thực hiện được từ bên mặt phải hoặc phía dưới máy

BƠM NƯỚC XẢ TIỆN LỢI
Bơm nước xả được lắp sẵn với độ nâng đường ống là 600mm. Dàn lạnh được giấu hoàn toàn trên trần, thích hợp cho không gian nội thất sang trọng. Cho phép bố trí linh hoạt ống nước thoát có thể cao hay thấp tùy theo vị trí lắp đặt.

Cửa sổ kiểm tra trong suốt
Khi máng nước xả bị dơ, có thể kiểm tra dễ dàng qua cửa sổ trong suốt này mà không phải tháo máng nước ra xem

HỆ ĐIỀU KHIỂN ĐA DẠNG

Độ dài ống đồng - 100m (hyper inverter 4-6hp)

Chiều dài đường ống gas nạp sẵn đến 30m
Lượng gas lạnh nạp sẵn cho đường ống dài đến 30m. Điều này giúp giảm thiểu việc phải nạp thêm môi chất lạnh trên công trường, tránh được việc sạc
quá mức hoặc thiếu gas, giúp cho việc lắp đặt máy được dễ dàng và nhanh chóng.
* Áp dụng các model Hyper Inverter 1.5~2.5HP, Standard Inverter là 15m.
Bảo vệ chống ăn mòn cánh tản nhiệt (Blue Fin) (3 ~10hp)
Nhờ vào ứng dụng phủ lớp bảo vệ Blue Fin (KS101) cho các dàn trao đổi nhiệt của các mẫu dàn nóng mới, việc chống ăn mòn được cải thiện so với các mẫu dàn nóng
trước đây.

THÔNG SỐ KỸ THUẬT MÁY LẠNH GIẤU TRẦN NỐI ỐNG GIÓ INVERTER ÁP SUẤT TĨNH CAO MITSUBISHI HEAVY FDU200VG/FDC200VSA (8.0HP)
